Топка ТШПМ-1,5 в Благовещенске

Топка ТШПМ с механическими системами топливоподачи и шлакоудаления используется в стационарных и модульных котельных для сжигания твердых видов топлива: дров, бурого и каменного угля, отходов ДВО. Оснащена шурующей планкой для распределения топлива по решетке и удаления остатков горения. Работает в паре с водогрейными котлами КВм, которые устанавливаются на топку в вертикальной компоновке.

Цена:
305 000 руб.
Количество:
Отправляя свои личные данные через формы на сайте, Вы даёте своё согласие на обработку персональных данных согласно Федеральному закону №152-ФЗ «О персональных данных» от 27.07.2006 г. в редакции от 01.07.2017.

Устройство и принцип работы топки ТШПМ-1.5

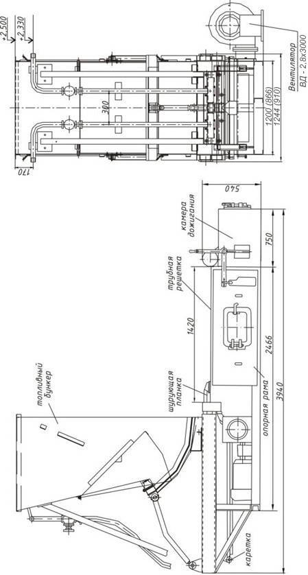
Топка ТШПМ-1.5 состоит из бункера для хранения топлива с шурующей планкой, неподвижной колосниковой решетки, установленной на раме и, собственно, корпуса топки из жаропрочной стали. При помощи шурующей планки топливо из бункера поступает на колосниковую решетку. Планка распределяет куски топлива по поверхности решетки и начинается процесс горения. Для более интенсивного горения и полноценного расхода топлива в системе предусмотрены вентиляторы, которые обеспечивают дополнительный приток воздуха в топку, снизу, через отверстия решетки. В рабочем состоянии топка поддерживает температуру решетки и шурующей планки, охлаждая их при помощи системы трубопровода.

Отличительная особенность топки ТШПМ-1.5 — шурующая планка. Ее основная задача — распределять топливо по решетке образуя равномерный слой для полноценного сжигания. Также, при помощи планки происходит сброс прогоревшего топлива в виде шлака и золы в камеру отходов, расположенную под колосниковой решеткой.

Рабочие процессы топки ТШМП-1.5 могут регулироваться при помощи котельной автоматики. Для этого в котельной дополнительно оборудуется щит с выводом контроля необходимых устройств. Также, автоматика может защитить от экстренных сбоев в котельной системе и заранее блокировать механизмы устройства.

Условное обозначение

Топка ТШПМ-1.5, где:

  • Т — топка;
  • Ш — с шурующей;
  • П — планкой;
  • М — механическая.
  • 1.5 — мощность сопутствующего котла.

Монтаж топки ТШПМ-1.5

Топка ТШПМ-1.5 устанавливается на предварительно выровненную поверхность без необходимости в строительстве специального фундамента. Крепится к поверхности при помощи анкерных болтов. Бункер топлива находится сбоку, сверху топки устанавливается водогрейный котел КВм.

Монтаж котельного оборудования производится с соблюдением СНиП 11-35-76 «Котельные установки» и «Правил устройства и безопасной эксплуатации паровых и водогрейных котлов».

Характеристики
Серия: ТШПМ
Вид топлива: Бурый угольКаменный угольАнтрацит
Диапазон изменения нагрузки: 40-100 %
Коэффициент избытка воздуха за топкой, не более: 1,4
Влажность топлива, не более: 12/38 %
Зольность топлива, не более: 25/38 %
Содержание мелочи (0-6 мм), не более: 50 %
Максимальный размер куска: 100 мм
Ширина колосниковой решетки: 860 мм
Активная площадь колосниковой решетки: 1,31 м²
Габаритные размеры: 4500х860х2530 мм
Масса: 1400 кг
Вид топки: Механическая
Схемы

Города поставок

Москва
Пн-Пт 09:00 - 18:00
Сб 09:00 - 17:00
Карачаево-Черкесская Республика
Пн-Пт 09:00 - 18:00
Сб 09:00 - 17:00
Екатеринбург
Пн-Пт 09:00 - 18:00
Сб 09:00 - 17:00

Совершите покупку за 4 шага

Шаг 1
Выберите товары из каталога
Шаг 2
Поместите нужные вам товары в корзины
Шаг 3
Укажите свои контактные данные в форме обратной связи
Шаг 5
Ожидайте звонка от менеджера для оформления покупки

Похожие товары

Топки ТШПМ
Топки ТШПМ
Цена от 0 руб.
Топки ТЧЗМ
Топки ТЧЗМ
Цена от 0 руб.
Топки ТЛПХ
Топки ТЛПХ
Цена от 0 руб.
Вы смотрели эти товары
Топки котлов
Топка ТШПМ с механическими системами топливоподачи и шлакоудаления используется в стационарных и модульных котельных для сжигания твердых видов топлива: дров, бурого и каменного угля, отходов ДВО. Оснащена шурующей планкой для распределения топлива по решетке и удаления остатков горения. Работает в паре с водогрейными котлами КВм, которые устанавливаются на топку в вертикальной компоновке.
Забрасыватели ПТЛ
Питатель ПТЛ-600 — это техническое устройство, которое предназначено для бесперебойного заброса топлива (уголь, горючий сланец) в котел и доменную печь. Используется во многих сферах жизни: в металлургической, химической, нефтяной, теплой, электрической промышленности.
Топки котлов
Топка ТШПМ с механическими системами топливоподачи и шлакоудаления используется в стационарных и модульных котельных для сжигания твердых видов топлива: дров, бурого и каменного угля, отходов ДВО. Оснащена шурующей планкой для распределения топлива по решетке и удаления остатков горения. Работает в паре с водогрейными котлами КВм, которые устанавливаются на топку в вертикальной компоновке.